Haarlem

Haarlemmerhoutkwartier

Eerste Emmastraat 10

€1.299.000,- k.k.
192 m² wonen
121 m² perceel
8 kamers
In Woonwijk
1904
Nienke Veenema – K-RMT – Mooijekind Vleut Makelaars in Haarlem
Nienke Veenema
NVM Makelaar
023 - 542 02 44

Beschrijving

Charmante, monumentale stadsvilla (1904) met veel comfort. De authentieke stijlkenmerken zoals glas-in-loodramen, hoge plafonds, een marmeren vloer, ornamenten in het plafond en paneeldeuren zijn behouden gebleven en geven het huis een bijzondere sfeer! De riante woonkamer en-suite met serre, de moderne keuken, zes slaapkamers, een werkkamer, twee moderne badkamers en maar liefst drie balkons bieden volop ruimte voor een groot gezin. De locatie van dit heerlijke familiehuis is ideaal: midden in de geliefde Koninginnebuurt en op steenworp afstand van alle voorzieningen, zoals vele winkels, charmante boetieks, gezellige cafés en restaurants, musea, theaters, scholen, parken, openbaar vervoer en uitvalswegen.

Deze royale stadsvilla combineert klassieke charme met hedendaags wooncomfort en is zeer geschikt voor gezinnen die op zoek zijn naar ruimte en stijl. Bij binnenkomst wordt u verwelkomd in een authentieke vestibule met veel marmer, welke gelijk een voorproefje geeft van de sfeer in de rest van het huis. Het pand ademt authenticiteit dankzij de originele details die behouden zijn gebleven, terwijl de grote raampartijen voor een overvloed aan natuurlijk daglicht zorgen.
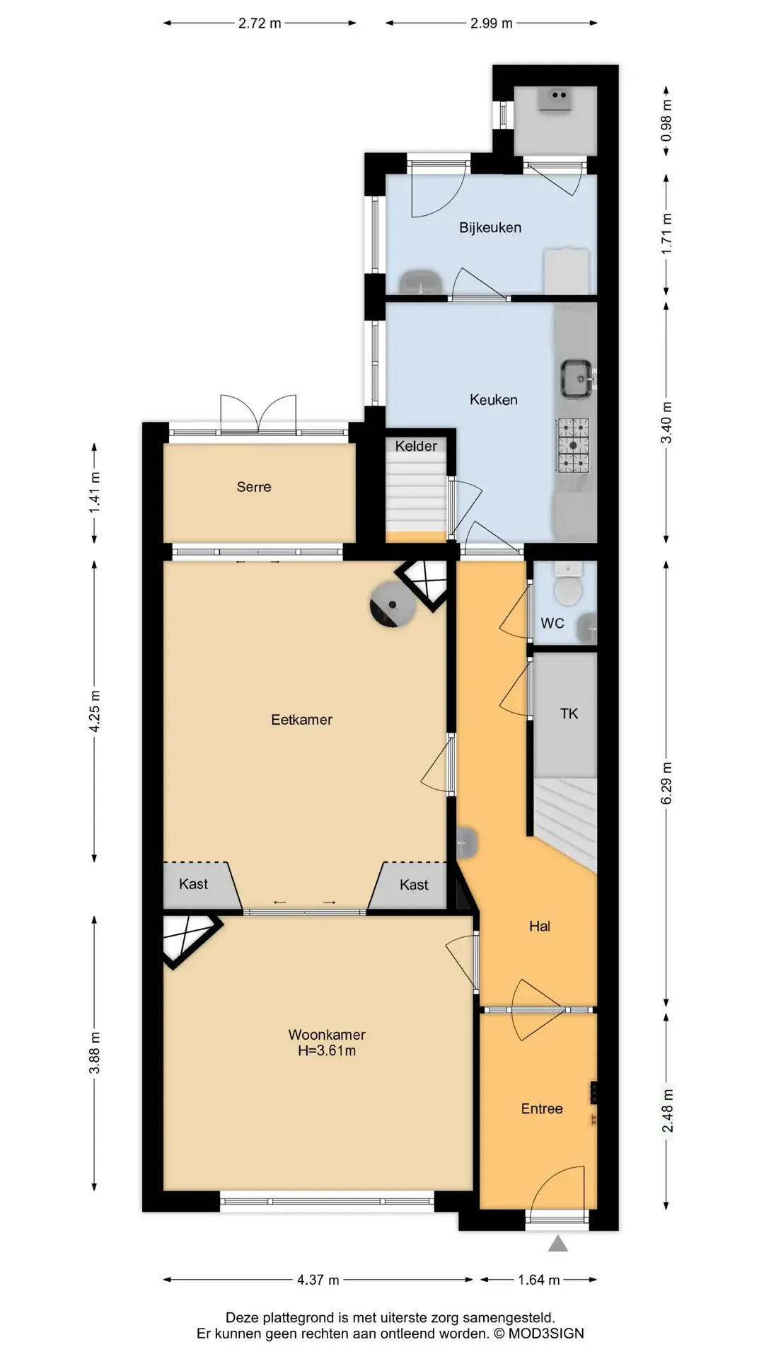
De woning is in 2018 volledig gerenoveerd: de vloerbalken zijn grotendeels vervangen, het leidingwerk vernieuwd, er zijn nieuwe houten vloeren gelegd en de cv-ketels zijn vervangen. In 2024 is de woning cosmetisch gerenoveerd; zowel de binnen- als buitenzijde zijn door een meesterschilder geschilderd, is er veel aan de styling gedaan en tevens is het hang- en sluitwerk vernieuwd. Op de begane grond vindt u die al eerder genoemde, fraaie vestibule en een royale woonkamer en-suite. Aan de achterzijde vindt u vaste kasten, een schouw met kachel (niet meer in gebruik) en een sfeervol gestijlde serre met openslaande deuren naar de besloten achtertuin met buitenkeuken. Daarnaast is er een moderne keuken voorzien van complete inbouwapparatuur, alsmede een deur naar de ruime voorraadkelder en een ruime bijkeuken met toegang tot de achtertuin op het noordwesten.

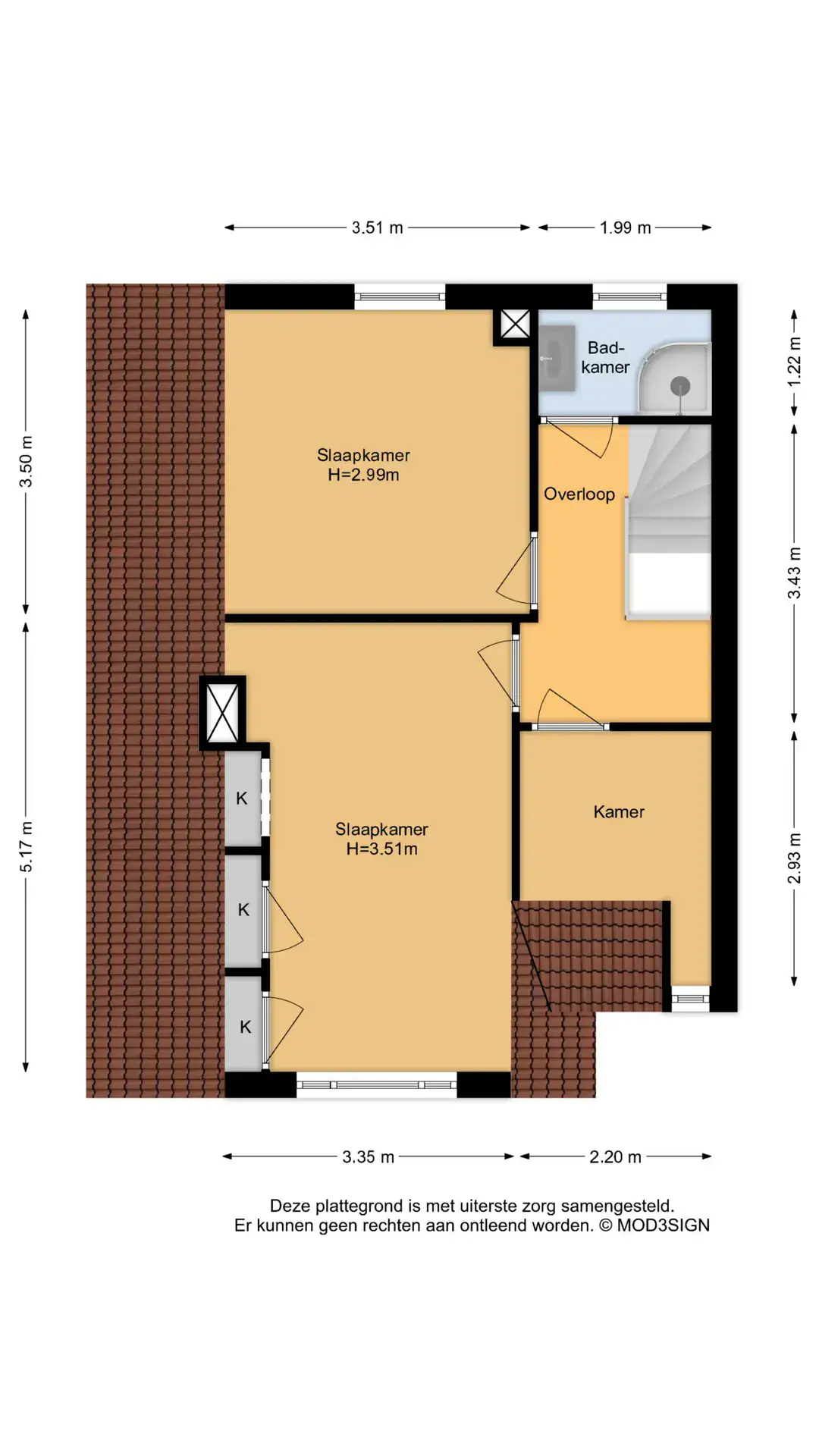
De eerste verdieping heeft drie ruime slaapkamers en een werkkamer met balkon aan de voorzijde. Tevens is er een moderne badkamer met een douche, een ligbad en een wastafelmeubel. Op de overloop bevindt zich een separaat toilet. Via een vaste trap bereikt u de tweede verdieping met een ruime overloop. Hier vindt u een moderne badkamer met douche, wastafelmeubel en toegang tot het dakterras dat een prachtig uitzicht biedt op de Bavokerk. Verder zijn er drie slaapkamers op deze verdieping: een slaapkamer aan de achterzijde, een ruime slaapkamer aan de voorzijde met bergvliering en vaste kasten, en een zesde slaapkamer eveneens aan de voorzijde.

Wat een locatie! Deze karakteristieke en bijzonder sfeervolle woning biedt u niet alleen een stijlvolle thuisbasis, maar ook een plek om volledig tot rust te komen in een van de meest geliefde en mooiste wijken van Haarlem. Alle winkels, leuke terrassen en goede restaurants zijn op loopafstand. Daarnaast zijn er ook verschillende scholen en kinderdagverblijven in de buurt. Parkeren kan middels een parkeervergunning. Uitvalswegen zijn snel te bereiken en ook het openbaar vervoer is binnen handbereik: in de directe nabijheid stoppen diverse bussen en het NS-station Haarlem en Heemstede zijn beide op slechts 5 minuten fietsafstand.

Goed te weten
* Bouwjaar 1904
* Woonoppervlakte: 192 m2
* Gemeentelijk monument
* Vele prachtige authentieke details zoals paneeldeuren, sierglaswerk, marmeren vloer
* De straat is een 30 km zone
* Uitvalswegen naar Amsterdam en Schiphol op 5 minuten rijden
* Op 20 minuten fietsafstand van het strand
* Vrij uitzicht aan de voorzijde
* Zonnige achtertuin (noord/west)
* Ideale ligging op loopafstand van het centrum
* Oplevering in overleg

Begane grond
Entree. Vestibule met veel marmer en authentieke deur met sierglas. Gang met trapkast en modern toilet. Royale woonkamer en-suite met hoge ornamenten plafonds, inbouwkasten en mooie stenen schouw. Aan de achterzijde een serre met openslaande deuren naar de tuin met buitenkeuken. Moderne keuken voorzien van extra breed gasfornuis met oven, afzuigkap en vaatwasser. Verder is er nog een authentieke voorraadkast met glazen deuren. Deur met toegang naar ruime kelder. Bijkeuken met gootsteen, aansluiting voor wasmachine en droger en deur naar de tuin. Kast met cv-ketel.

Eerste verdieping
Overloop met separaat toilet. Slaapkamer aan de achterzijde met toegang naar de badkamer met ligbad, douche, wastafelmeubel en handdoekradiator. Slaapkamer aan de achterzijde met vaste kasten en balkon. Slaapkamer aan de voorzijde met vaste kasten en schouw. Werkkamer met inpandig balkon.

Tweede verdieping
Ruime overloop. Moderne badkamer met douche, wastafelmeubel en toegang naar het dakterras met uitzicht op de Bavo kerk. Slaapkamer aan de achterzijde. Slaapkamer aan de voorzijde met vaste kasten en bergvliering met opstelling van de c.v.-ketel. Slaapkamer aan de voorzijde.

Plattegronden

Kenmerken

Algemeen
Prijs €1.299.000,- k.k.
Aanvaarding In Overleg
Status Beschikbaar
Energie
Verwarming Cv ketel, Mogelijkheid voor open haard
Warm water Cv ketel
CV-ketel Nefit (Eigendom)
Oppervlakte en inhoud
Wonen 192 m²
Overige inpandige ruimte 17 m²
Gebouwgebonden buitenruimte 6 m²
Perceel 121 m²
Inhoud 797 m²
Hoofdtuin 43 m²
Specificaties
Soort woonhuis Herenhuis
Soort bouw Bestaande Bouw
Bouwjaar 1904
Ligging In Woonwijk
Type tuin Achtertuin
Garage Nee
Externe berging Nee
Kadastrale gegevens
Plaats & postcode Haarlem 2012 GG
Perceel 121 m²
Eigendomssituatie Volle Eigendom
Indeling
Aantal kamers 8 kamers (6 slaapkamers)
Aantal badkamers 2 badkamers
Badkamervoorzieningen Douche, Wastafelmeubel, Ligbad
Voorzieningen Tv kabel, Rookkanaal, Natuurlijke ventilatie Verdiepingen
Toon alle kenmerken Toon minder kenmerken
hypotheekshop-logo Wat worden mijn maandlasten? Klik hier om een afspraak te maken met een onafhankelijke hypotheekadviseur
Buurt & ligging
Haarlemmerhoutkwartier
Alle buurtinfo
Aantal inwoners 13050
Aantal woningen 6290
Gem. WOZ-waarde €734571
Voorzieningen in de buurt
      Samenstelling huishoudens

      single

      zonder kinderen

      met kinderen

      Leeftijdsopbouw

      0 - 14 jaar

      15 - 24 jaar

      25 - 44 jaar

      45 - 64 jaar

      65+ jaar

      Verdeling type woning

      tussenwoning

      hoekwoning

      twee-onder-een-kap

      vrijstaand

      appartementen

      Vergelijkbaar in de buurt

      Zelfde prijscategorie Zelfde type woning
      Haarlem
      Waarder- en Veerpolder

      Delftlaan 9

      Eengezinswoning
      207 m²
      152 m²
      7 kamers
      € 1.175.000,- k.k.
      Bekijk
      Duurzaam icon
      Duurzaam
      Haarlem
      Ter Kleefkwartier

      Verspronckweg 177

      Eengezinswoning
      165 m²
      161 m²
      6 kamers
      € 1.250.000,- k.k.
      Bekijk
      Haarlem
      Haarlemmerhoutkwartier

      Zomerluststraat 20

      Herenhuis
      420 m²
      536 m²
      17 kamers
      € 2.000.000,- k.k.
      Bekijk
      Haarlem
      Haarlemmerhoutkwartier

      Stolbergstraat 6

      Herenhuis
      342 m²
      325 m²
      8 kamers
      € 2.950.000,- k.k.
      Bekijk
      Haarlem
      Haarlemmerhoutkwartier

      Van Eedenstraat 1

      Herenhuis
      257 m²
      250 m²
      9 kamers
      € 1.650.000,- k.k.
      Bekijk